ORTUS is a collaboration between SCland Group and MUI Group the master developer of Bandar SpringHill
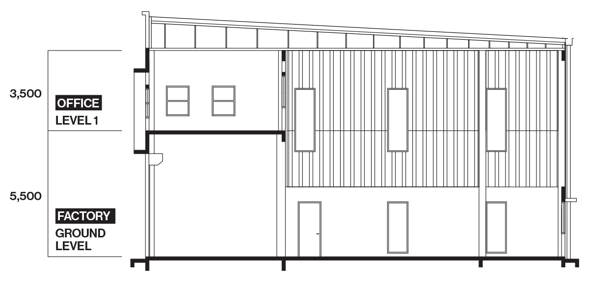
Featuring 211 ultra-modern factory units comprising a mixed of detached and semi-detached varieties, Ortus Park introduces a groundbreaking concept in Bandar Springhill’s industrial scene; a central space where innovation and functionality converges. Strategically located and equipped with diverse facilities, impressive flexibility, superior security system, and a futuristic appeal, Ortus Park is crafted for modern businesses’ warehousing needs, light manufacturing works, and much more.
Strategically situated in the central core between Port Dickson and Seremban, Ortus Park is the industrial component of Ortus in Bandar Springhill, a 2,000-acre township conceptualised and developed by West Synergy Sdn Bhd, a subsidiary of MUI Properties Berhad. Surrounded by a variety of modern amenities, this modern industrial park is also located only 14KM from Port Dickson town and 16.5KM from Seremban 2 via the North-South Highway, Seremban-Port Dickson Highway, and the Seremban-Port Dickson trunk road.
Ortus Park presents itself as the ideal opportunity for investors and occupants to secure a modern industrial facility in the region with the luxury of convenience, seamless connectivity, vital business exposure and the right facilities needed for businesses to take flight.